Now offering U-Tour self tours on select spec homes!

ROSEMAN RANCH

CUSTOM PLAN

Architectural Rendering Custom Floor Plan Exterior view

The Details

WHY You'll love it

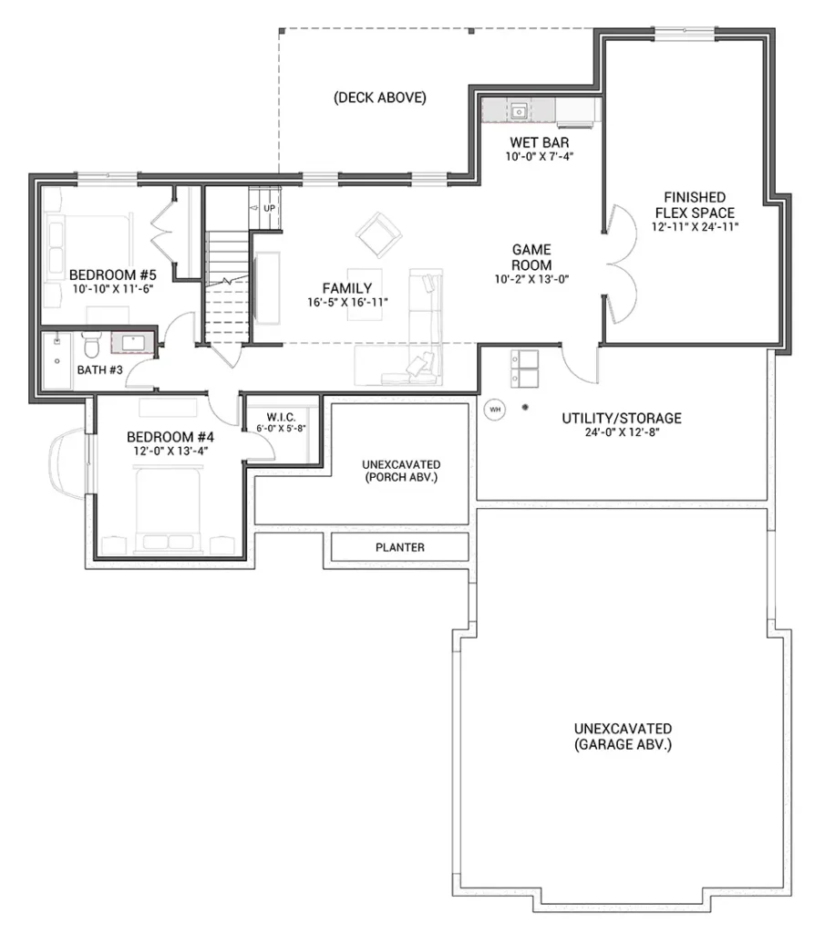
Part of our Homestead Series, this spacious ranch features three main-level bedrooms, including a primary suite with a large bathroom, walk-in closet, and walk-through laundry to the mudroom. A welcoming front courtyard and backyard entertaining space extend the living outdoors. Inside, the kitchen includes a four-seater island, perfect for gatherings. The finished lower level offers even more space with three additional bedrooms, an office, and a stylish wet bar with additional bar seating.

Square Feet: 1,896 SF
Lower Level Optional Finish: 1,378 SF, Three Additional Bedrooms, Office
Bedrooms:
Bathrooms: 2
Garage: 3 Car, Tandem
Dimensions: 61’8″ x 72′

FLOOR PLANS

* All floor plans are fully customizable to suit your preferences.

FIRST FLOOR

LOWER LEVEL

PHOTO GALLERY

Architectural renderings and finishes chosen by previous clients to bring this custom home floor plan to life.

START YOUR New build today!

Connect with one of our agents!

Kalen Ludwig, Realtor®

Keaton Dreher, Realtor®